For sale

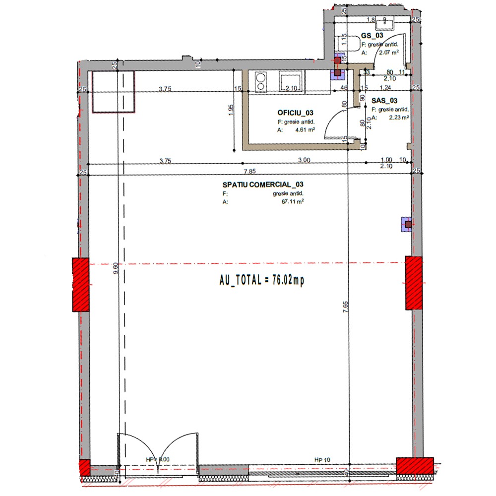
Commercial Space 3

We have the smallest area in this space, 76 sqm usable. Here we have a single entrance from București Street, an office and a bathroom in the back. The height is 3 m, and parking will be available outside.

Location

Solaris Avangarde / București street no 41-45

Living area

76 mp

Construction start date

January 2026

Delivery date

June 2027

Positioning

Ground floor

Destination

Medical office, Notary office, lawyer, store, etc.

Payment method:

100% advance payment upon pre-contract:

50% upfront, 50% at shell stage

Underground parking

For sale

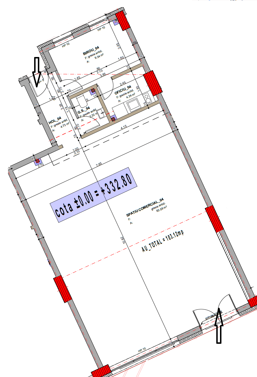
Commercial Space 4

The space benefits from generous glass surfaces and a height of 3 m, and parking will be available outside.

The commercial space has two entrances: through the front and through the backyard. The partitioning includes a main room in the front and an office, an office and a bathroom, all connected by a hallway in the back.

Location

Solaris Avangarde / București street no 41-45

Living area

103 mp

Construction start date

january 2026

Delivery date

June 2027

Positioning

Ground floor

Destination

Retail or food businesses, office space, showroom, pharmacy, beauty salon, medical clinic, fitness room or cafe.

Payment method:

100% advance payment upon pre-contract:

50% upfront, 50% at shell stage

Underground parking

For sale

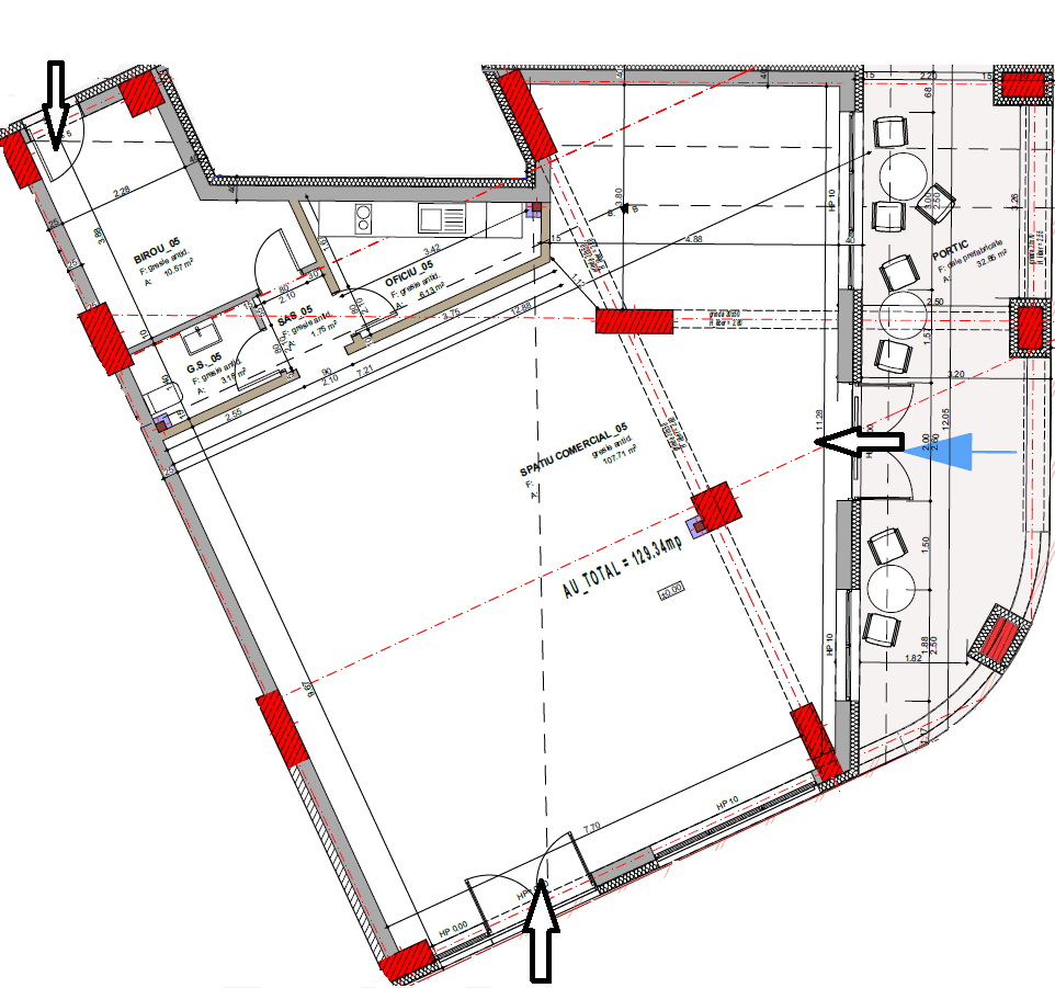
Commercial Space 5

We have the largest area in this space, 129 sqm useful. Here we have three entrances, from București Street, from the side of the building and from the backyard. To the east there is a portico that can be used as a terrace. The height is 3 m, and parking will be available outside.

Location

Solaris Avangarde / București street no 41-45

Living area

129 mp

Construction start date

January 2026

Delivery date

June 2027

Positioning

Ground floor

Destination

Medical office, dentistry, shop, cafe, barbershop, showroom, fast food, bank office, shop, etc.

Payment method:

100% advance payment upon pre-contract:

50% upfront, 50% at shell stage

Underground parking

Location

5 minutes away

Fitness centers

Bus stops

Shops: Mega Image, Profi, Carrefour

High schools: College of Music, “Avram Iancu” High School

Kindergartens: Căsuța Poveștilor I and II, Ary.

10 minutes away

Parcul Feroviarilor.

Business areas: The Office, CBC, Record Park.