Îți propunem spații comerciale centrale, aflate la fază de proiect, ceea ce îți oferă libertatea de a le amenaja și autoriza exact după cerințele afacerii tale.


Spațiul are o înălțime de 3 m și acces atât din față, cât și din curtea din spate. Acesta poate fi recompartimentat și autorizat conform specificațiilor afacerii dvs.
Schița actuală este configurată ca exemplu de showroom, cu spațiu de vânzare, cameră de prezentare, birou, grup sanitar și oficiu.
Compartimentarea este flexibilă – spațiul poate fi reconfigurat și autorizat conform nevoilor viitorului proprietar.
Spațiul poate fi comasat cu celălalt, rezultând o suprafață utilă totală de 255 mp.
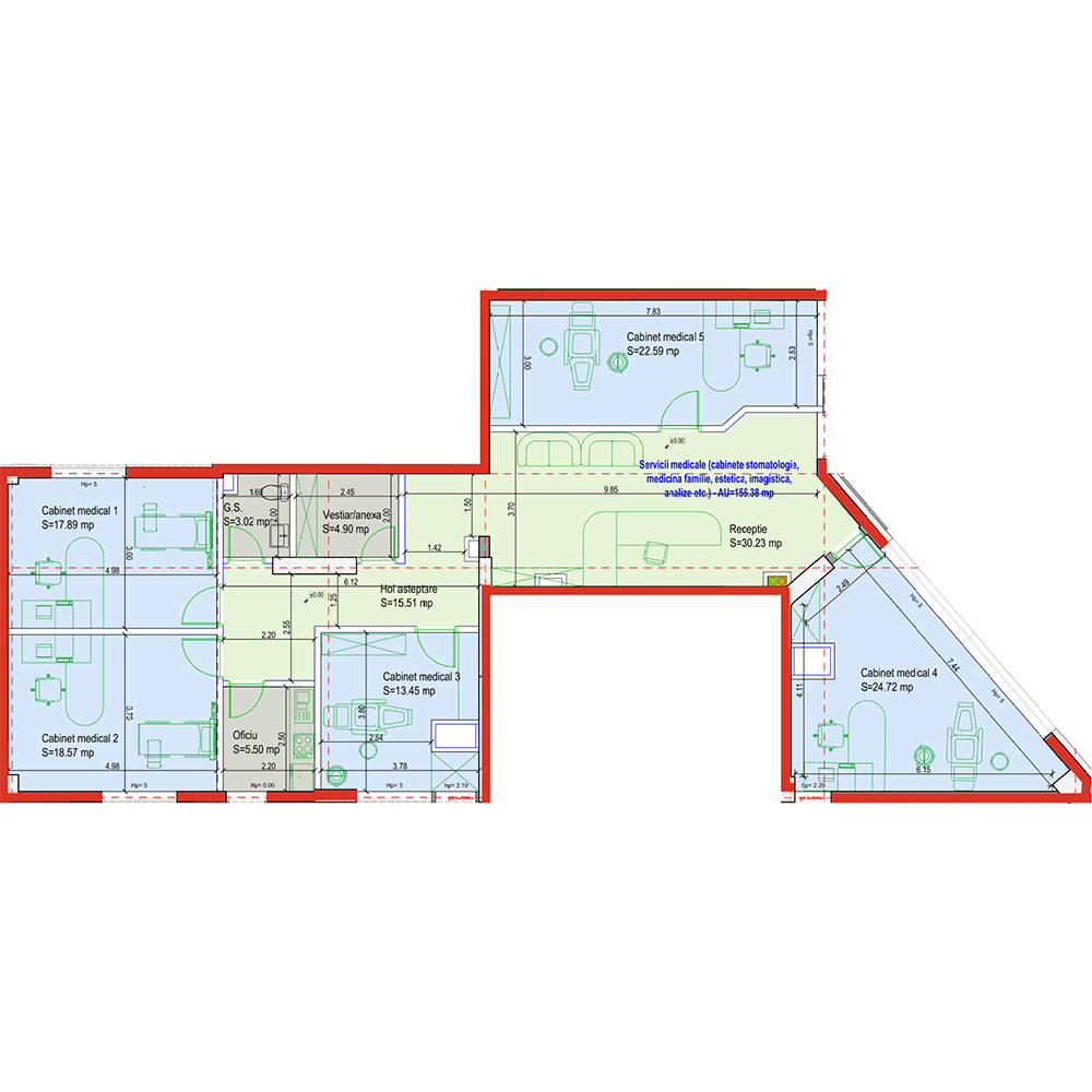
Spațiul este situat la parter, cu două intrări (una principală, în față, și una laterală) și are o înălțime de 3 m.
Schița actuală este configurată ca exemplu de clinică medicală, cu 5 cabinete, recepție, grup sanitar, oficiu și vestiar.
Compartimentarea este flexibilă – spațiul poate fi reconfigurat și autorizat conform nevoilor viitorului proprietar.
Spațiul poate fi comasat cu celălalt, rezultând o suprafață utilă totală de 255 mp.


Proiectul “SOLARIS ATRIUM” un imobil mix cu 6 etaje situat pe str. Burebista 5-7, pe un teren în suprafață de 1275 mp, într-o locație liniștită, la numai 800 m de P-ta Mihai Viteazu.
Cladirea are la parter 2 spații comerciale, iar la etajele 1-6 vor fi 24 de apartamente, cu 2, 3 și 4 camere, având suprafețele cuprinse între 52 și 100 mp, la care se adaugă logii sau terase. La subsol va fi un garaj cu 24 de locuri de parcare și boxe de depozitare individuale pentru viitorii locatari.
Fiind clasificat nZeb (Near Zero Energy Bulding), imobilul va avea o eficiență energetică ridicată și un consum de energie scăzut.
Atât în fața imobilului, cât și în curtea interioară, vor fi amenajate spații verzi cu arbori maturi, în suprafață totală de peste 250 mp și deasemenea, în curte se va amenaja un loc de colectare selectivă a deșeurilor, pe 4 fracții.
Cladirea va fi dotata cu sistem de alarmare pentru incendii și va fi autorizată ISU, iar garajul va avea sistem de desfumare pentru eliminarea noxelor.
Proiectul este în construcție.
Gara Centrală
Parcul Feroviarilor
Piața Mihai Viteazu
Mijloacele de transport în comun la o distanta de 2-3 minute de mers pe jos
Piata Muzeului – 1,2 km (10-15 minute de mers pe jos)
Piata Unirii (centrul orasului) – 1,3 km (15-20 de minute de mers pe jos)
1
Programăm o discuție pentru a vedea planurile și amplasamentul.
2
Alegi spațiul comercial și stabilim modalitățile de plată.
3
Stabilim cerințele tehnice și de autorizare în funcție de domeniul tău.
4
Te informăm constant și transparent de evoluția proiectului.
5
Finalizăm și predăm spațiul gata de utilizare.